| How it looked liked before ..

It was not so easy to find a nice new room in Mainz, not too far from the center, suitable for two people, not too expensive, with an equipped kitchen at a quite place and if possible with a beet green around. End of April and in early May I looked around. Good offers were gone very soon and many people wanted to have them. Sometimes you were in queue. In the case of our new appartment I was the first sending a request-mail immediately after the advertisement was up in the Internet
The way to the center is a bit longer: 20 - 25 mins by bus or 25 - 30 mins by bike, but the bus station is immediately in front of the door. So it convenient.

Details and impressions:

The new appartment has 56 sqm and a celler which is a bit smaller. The kitchen was half equipped and a place for a washing machine in the bathroom, but no machine and no drying room:
|
 |
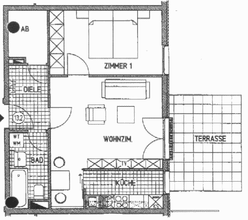
| The sketch above was from the house construction company selling the appartment and we had to think over and vary the furniture. From my old appartment I had no shelf really suitable for the living room and also no big closet for the bedroom in which would have been enough space for the clothes of Leticia and me. |
 |
| First ideas were changed a bit in the end ... but it was the basis for seeing from where to get affordable but nice furniture. Because so far most of the rooms where a bit empty ...
The living room with the view out to terace and garden:
|
 |
| The bedroom .... |
 |
 |
| And a storage rooms where the former couple left two shelfs. In the first days in mid May after getting the keys I had first to paint the walls a bit. But the state was not really bad. In the kitchen the ceramic cooking field was broken and the oven was really messy. That's why we decided, after getting a good offer together with a washing machine, to buy a new one. A nice thing, which was already in was the little dish-washer. We used it when my parents came for helping for a few days. For myself it's not necessary but I guess together with Leticia we will cook more and it will become useful. |
 |
In the bathroom we have a bathtub now. It's not really always more useful than a shower. But it begins to turn out that for the shower the swimming pool next to us seems to become more useful than the own bathroom. We will see in the long term.
The following photo shows the front side of the house with the entrance.
|
 |
 |
| The appartment is part of a larger housing area, which is built around a large court. In the court is space for parking the bike under a lockable cage even with roof for rain protection. There are the big waste bins and several playtgrounds for the children like the one here. Our garden is just under the balcony in the middle. It's not very big ... about 5 x 7 m but enough to sit outside, stay with friends, make a barbecue or grow a few herbs, flowers and other little plants. The first challange however was to get all the things there from the old appartment and buy new furniture for the rooms. |
 |
| Within two weeks I got a lot via ebay and a few new things and arranged it in a way that I could pick it up during the two days when I had the little van. It was a Mercedes Sprinter like shown above. I had it on the 16th, 17th of May for two days. I picked up a new bed, two new matrasses, the future bedroom closet and the closet for the living room wall. For one drive my mom came with me, for one a colleague from the institute. And we had the big moving day, when most of the things from the old appartment where put into the car and driven to the new room. |
 |